Miranda 320 Port Hacking Road

Enquire Now
< >
Sold

600.5 Sqm - 16.25 M Frontage


  • Sold
    $1,351,000

    2 1 1
  • Share This Property


If required, the neighbour at 8 Milford Road is open to entering into an Easement agreement with reasonable compensation!!!

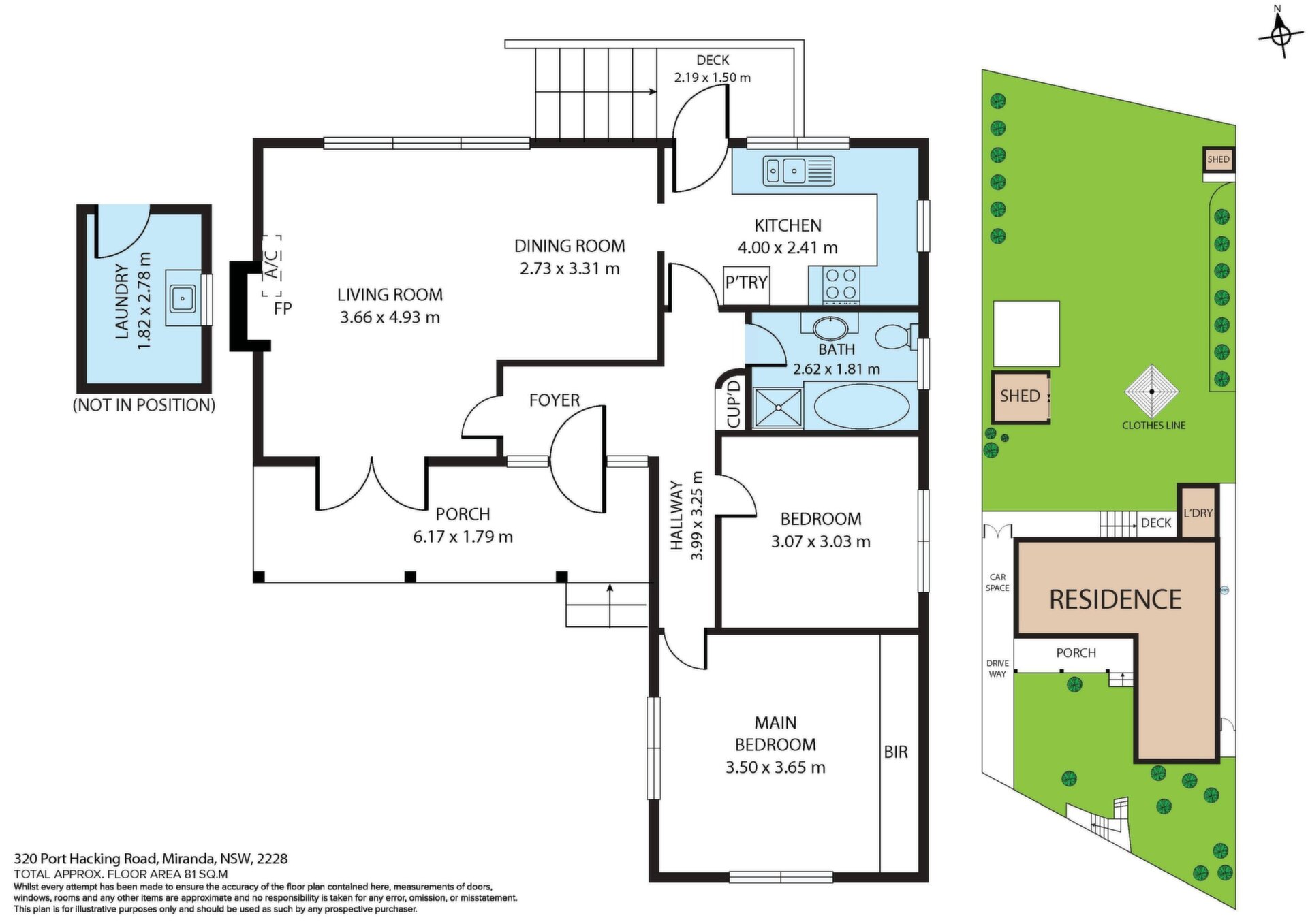
Positioned in a highly sought-after location, 320 Port Hacking Road, Miranda presents an exceptional opportunity on a great piece of prime land. This charming original two-bedroom home is full of character, offering comfortable, convenient living.

The home offers a welcoming blend of original features and thoughtful updates, including timber and tile flooring, two spacious bedrooms, and an inviting fireplace. The renovated kitchen is flooded with natural light and features large windows that overlook the expansive, grassed backyard – perfect for entertaining.

With spacious front and back yards, side access that allows vehicles to drive through to the rear, and generous under-house storage, the property offers both practicality and charm, providing the perfect canvas to make it truly your own.

With its generous block size and unbeatable location, this property is a standout opportunity for buyers seeking to make it their own. Ideally positioned just 1.6km from Westfield Miranda and only 230m from Sutherland Hospital, it offers exceptional convenience in a tightly held pocket.

Property Features:

Large, grassed backyard and front yard, perfect for relaxing Air conditioning unit in the living space, offering year-round comfort Located just 1.5km away from Miranda Train Station and only a 350m walk to the closest bus stop (Kingsway at Carramar Cres) An attached shed at the rear of the home provides additional storage options 16.255m Frontage School catchment areas: K–6 Miranda North Public School located 700m away, 7–12 Endeavour Sports High School located 1.4km away

If you are interested in viewing this property, please contact Stewart Maloney on 0419 995 713 or Joel Bethell on 0406 274 375.

#teammaloney

Property Information

  • Land area approx 600.5sqm
  • Council Rates $516.70/quarter
  • Water Rates $362.40/quarter
  • Garages 1

Property Features

  • Window Treatments
  • Close to Shops
  • Close to Schools
  • Carpeted
  • Car Parking - Surface
  • Built In Wardrobes
  • Air Conditioning


Local Information Miranda

Miranda is bounded by Box Road, Port Hacking Road, Sylvania Par 3 Golf Course and the waterway in the north, Taren Point Road, Kumulla Road, Kareena Road North and Kareena Road South in the east, Yowie Bay, Clifford Road, Kiora Road South and Forest Road in the south and Sylvania Road South and Sylvania Road North in the west.

Read more about Miranda

Nearest Schools*
  • Government Schools
  • Independent Schools

Primary

  • Miranda North Public School
  • Caringbah North Public School
  • Laguna Street Public School
  • Miranda Public School
  • Yowie Bay Public School
  • Taren Point Public School
  • Caringbah Public School
  • Gymea North Public School

Secondary

  • Endeavour Sports High School
  • Caringbah High School
  • Port Hacking High School
  • Sylvania High School
  • Gymea Technology High School
  • Woolooware High School
  • Kirrawee High School
  • Cronulla High School

Special

  • Sutherland Hospital School
  • Bates Drive School

Primary

  • Our Lady Star of the Sea Catholic School
  • Our Lady of Fatima Catholic Primary School
  • Sydney Montessori School
  • St Catherine Labouré Catholic Primary School
  • St Francis de Sales Catholic Primary School
  • St Aloysius Catholic Primary School
  • St Joseph's Catholic Primary School Como - Oyster Bay
  • St Finbar's Primary School

Secondary

  • De La Salle Catholic College, Caringbah
  • Our Lady of Mercy Catholic College Burraneer
  • De La Salle Catholic College, Cronulla

Special

  • Aspect South East Sydney School, Caringbah
  • Aspect South East Sydney School, Kirrawee
  • Aspect South East Sydney School, Kareela
* Nearby schools are selected based on straight-line distance only.
×
< >
×
Property Enquiry
×