Miranda 2/17-21 Willock Avenue

Enquire Now
< >

Low-Maintance Living


  • For Sale

    2 1 2
  • Open Times

    Please contact Stewart Maloney to arrange an appointment.
  • Share This Property


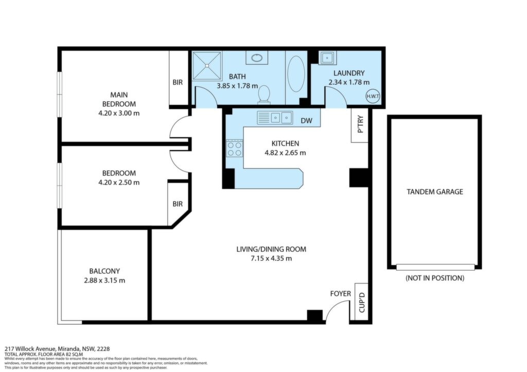
Perfectly positioned for ultimate convenience, this beautiful north-facing apartment is just 400 metres from Westfield Miranda, which caters for all of your needs such as shopping, dining, and entertainment options! Commuting is effortless, with Miranda Train Station only 600 metres away and the nearest bus stop on Kiora Road (opposite Penprase Lane) just 290 metres from your door, ensuring seamless connectivity throughout the Sutherland Shire and beyond.

The natural flow of the layout creates an inviting atmosphere, with large windows allowing plenty of natural light to fill the home. The generously sized kitchen is well-appointed with ample bench space, an induction cooktop, and plentiful storage, ensuring ease of use. The home has been appointed with new carpet, paint, lighting and appliances.

Step outside to the private balcony, a peaceful spot to unwind after a long day. This inviting outdoor space seamlessly extends the living area, making it perfect for quiet relaxation, morning coffees, or casual catch-ups with friends. Completing the picture is a tandem lock-up garage with plenty of room for storage, providing secure parking and ample space to keep your belongings neatly organised.

Offering a perfect blend of lifestyle, location, and low-maintenance living, this apartment is an ideal opportunity for first-home buyers, downsizers, or investors seeking a quality property in the heart of Miranda.

Property Features:

Two generously sized bedrooms feature built-in wardrobes and ceiling fans, providing ample storage and comfortable airflow throughout the year. Air conditioning unit, to ensure year-round comfort Spacious bathroom with separate bathtub Internal laundry, with plenty of storage space School Catchment Areas: K-6 Miranda Public School located just 750m away, 7-12 Port Hacking High School located just 500m away Strata $1,016pq, Water $172.83pq, Council $329.50pq Currently tenanted, paying $1,250 a fortnight lease expires, 29/05/2026

If you are interested in viewing this property, please contact Joel Khoury 0473 154 448 or Stewart Maloney 0419 995 713.

Property Information

  • Land area approx 86sqm
  • Council Rates $329.50/quarter
  • Water Rates $172.83/quarter
  • Strata Admin Fund $1016/quarter
  • Garages 2

Property Features

  • Car Parking - Basement
  • Built In Wardrobes
  • Balcony
  • Air Conditioning
  • Carpeted
  • Close to Schools
  • Close to Shops
  • Close to Transport


Local Information Miranda

Miranda is bounded by Box Road, Port Hacking Road, Sylvania Par 3 Golf Course and the waterway in the north, Taren Point Road, Kumulla Road, Kareena Road North and Kareena Road South in the east, Yowie Bay, Clifford Road, Kiora Road South and Forest Road in the south and Sylvania Road South and Sylvania Road North in the west.

Read more about Miranda

Nearest Schools*
  • Government Schools
  • Independent Schools

Primary

  • Miranda Public School
  • Miranda North Public School
  • Gymea North Public School
  • Yowie Bay Public School
  • Laguna Street Public School
  • Caringbah North Public School
  • Sylvania Heights Public School
  • Kirrawee Public School

Secondary

  • Port Hacking High School
  • Endeavour Sports High School
  • Sylvania High School
  • Gymea Technology High School
  • Caringbah High School
  • Kirrawee High School

Special

  • Sutherland Hospital School
  • Bates Drive School
  • Minerva School

Primary

  • Our Lady Star of the Sea Catholic School
  • Sydney Montessori School
  • St Catherine Labouré Catholic Primary School
  • Our Lady of Fatima Catholic Primary School
  • St Joseph's Catholic Primary School Como - Oyster Bay
  • St Patrick's Catholic Primary School
  • St Francis de Sales Catholic Primary School

Secondary

  • De La Salle Catholic College, Caringbah
  • Our Lady of Mercy Catholic College Burraneer
  • St Patrick's College Sutherland
  • De La Salle Catholic College, Cronulla

Special

  • Aspect South East Sydney School, Kirrawee
  • Aspect South East Sydney School, Caringbah
  • Aspect South East Sydney School, Kareela
* Nearby schools are selected based on straight-line distance only.
×
< >
×
Property Enquiry