Menai 4/595 Old Illawarra Road

Enquire Now
< >
Sold

SOLD off MARKET in 5 DAYS


  • Sold
    $1,400,000

    3 2 2
  • Share This Property


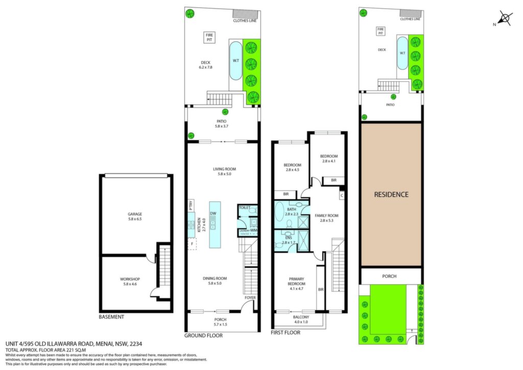
Positioned within a well-maintained complex, 4/595 Old Illawarra Road, Menai presents a spacious and thoughtfully designed home, ideal for comfortable family living. Showcasing a functional open plan layout, the home is enhanced by quality finishes throughout, including stunning tiling across the lower level and plush carpet upstairs, creating a warm and inviting atmosphere.

At the heart of the home is a generously sized kitchen, complete with a large island bench, breakfast bar, and ample storage, perfectly suited for everyday living and entertaining. The open plan living and dining area seamlessly connects to a sunlit front courtyard, offering a peaceful space to relax, while the expansive tiled outdoor entertaining area flows effortlessly to a lower deck, creating a true indoor-outdoor lifestyle.

The home comprises of three spacious bedrooms, all fitted with built-in wardrobes. The master suite offers added comfort with a private ensuite and adjoining balcony. Upstairs also features a versatile landing area, ideal for a study or additional living space. Completing the home are beautifully appointed bathrooms, including a main bathroom with a freestanding bathtub and floor-to-ceiling tiling.

Property features:

Split system air-conditioning Bosch security system, accompanied by video intercom Tinted windows for added privacy Secure underground double lockup garage with adjoining store room. This has direct access to inside the property for added convenience. Ethernet cables throughout (living, dining, landing, 3 bedrooms) NBN into the garage Closest bus stop located just 64m away (Old Illawarra Rd opp Bradman Rd) School catchment areas: K-6 Menai Public School located 1.1km away, 7-12 Menai High School located 1.6km away

If you are interested in viewing this property, please contact Stewart Maloney 0419 995 713 or Luke Johnson on 0449 598 336.

Property Information

  • Land area approx 330sqm
  • Council Rates $400.30/quarter
  • Water Rates $297.95/quarter
  • Strata Admin Fund $1375.85/quarter
  • Ensuite 1
  • Toilets 3
  • Garages 2

Property Features

  • Close to Transport
  • Close to Schools
  • Carpeted
  • Car Parking - Basement
  • Built In Wardrobes
  • Air Conditioning


Local Information Menai

Menai - Sandy Point is bounded by the Georges River in the north, Mill Creek, the suburb of Alfords Point, Old Illawarra Road and the suburbs of Illawong and Bangor in the east, Bangor Road, New Illawarra Road and the suburb of Barden Ridge in the south and the suburb of Lucas Heights, Liverpool City and Deadmans Creek in the west.

Read more about Menai

Nearest Schools*
  • Government Schools
  • Independent Schools

Combined

  • Lucas Heights Community School

Primary

  • Menai Public School
  • Tharawal Public School
  • Bangor Public School
  • Alfords Point Public School
  • Illawong Public School
  • Woronora River Public School
  • Lugarno Public School
  • Picnic Point Public School

Secondary

  • Menai High School
  • Picnic Point High School

Combined

  • Inaburra School
  • Shire Christian School

Primary

  • Holy Family Catholic Primary School

Secondary

  • Aquinas Catholic College

Special

  • Aspect South East Sydney School, Menai
  • Aspect Macarthur School, Holsworthy
* Nearby schools are selected based on straight-line distance only.
×
< >
×
Property Enquiry
×