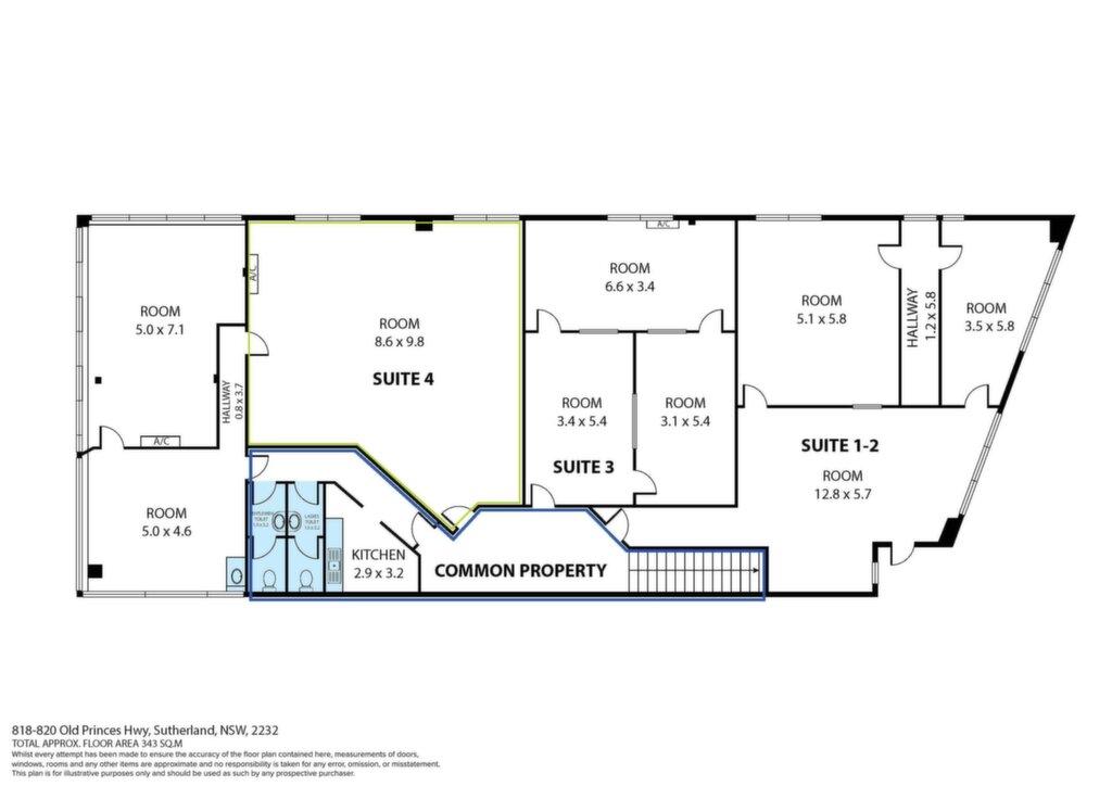
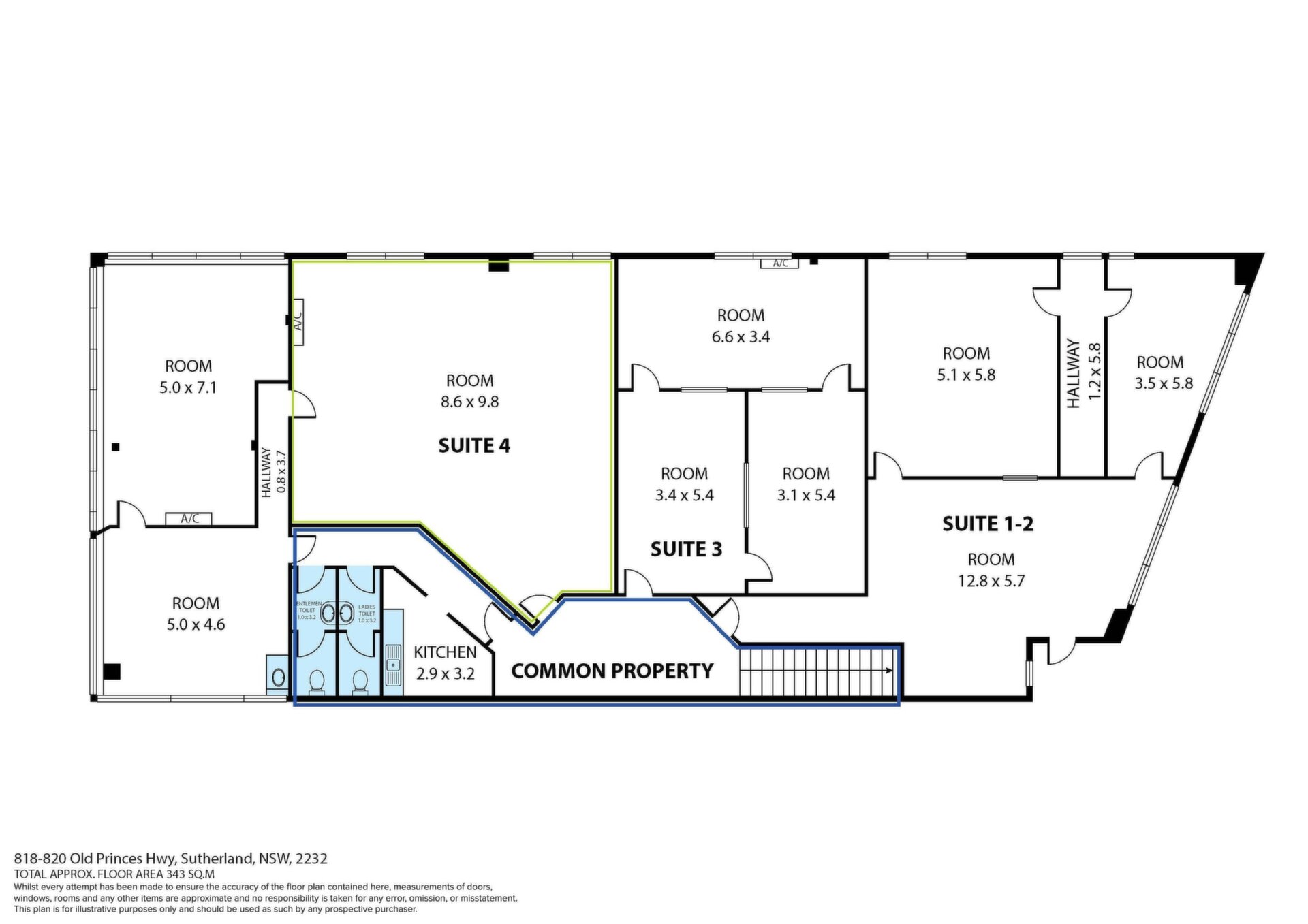
Sutherland 4/818-820 Old Princes Highway
First Floor Office Suite
-
For Lease
CONTACT AGENT1 -
Rental Details
Availability Available NowOnline Application -
Open Times
Please contact Brendon King to arrange an appointment. Book Inspection -
Share This Property
Set in the heart of Sutherland's bustling retail precinct, located opposite Sutherland Railway Station is this commercial office suite.
+ Carpeted & Air-conditioned
+ Communal Amenities + kitchenette
+ undercover car spot available
+ Opposite Sutherland train and bus station
+ Located minutes from Princess Highway
+ Portion of Outgoings
Available: Now
Don't miss your opportunity to secure this property, Contact Brendon King 0406 111 150, or the Leasing Department of Century 21 Sutherland Shire for further information
Disclaimer: Whilst every care is taken in the preparation of the information contained in this marketing, Century 21 Sutherland Shire will not be held liable for any errors in typing or information. All interested parties should rely upon their own enquiries to determine whether or not this information is in fact accurate.
Property Information
- Floor area approx 84sqm
-
-
Cooper MorelliNew Business Manager | Leasing Consultant
-
Julia MartinSenior Portfolio Manager | Department Team Lead
Local Information Sutherland
Sutherland is bounded by the southern edge of Burnum Burnum Sanctuary, Sumner Street and Jannali Avenue in the north, Acacia Road and Acacia Road North in the east, the Princes Highway, the Old Princes Highway, First Avenue and the southern edge of Prince Edward Park in the south and Forbes Creek and River Road in the west.
- Government Schools
- Independent Schools
Primary
- Sutherland Public School
- Sutherland North Public School
- Woronora River Public School
- Loftus Public School
- Jannali Public School
- Kirrawee Public School
- Jannali East Public School
- Bonnet Bay Public School
Secondary
- Kirrawee High School
- The Jannali High School
- Gymea Technology High School
- Port Hacking High School
Special
- Minerva School
- Cook School
- Bates Drive School
- Royal National Park Environmental Education Centre
Combined
- Inaburra School
Primary
- St Patrick's Catholic Primary School
- St Catherine Labouré Catholic Primary School
- Sydney Montessori School
- St Joseph's Catholic Primary School Como - Oyster Bay
- Holy Family Catholic Primary School
Secondary
- St Patrick's College Sutherland
- Aquinas Catholic College
Special
- Aspect South East Sydney School, Kirrawee
- Aspect South East Sydney School, Kareela
- Aspect South East Sydney School, Menai